Tổng quan CĂN HỘ CAPITAL SQUARE ĐÀ NẴNG – CITY IN CITY
CAPITAL SQUARE
CITY IN CITY
Dự án Capital Square là tổ hợp Thương Mại Dịch Vụ, căn hộ cao cấp tại lõi Trung tâm Thành Phố Đà Nẵng với thiết kế nổi bậc là line led ánh sáng và căn hộ thông minh nhằm đáp ứng nhu cầu thực tế của khách hàng khi đến Đà Nẵng tìm 1 nơi trung tâm và đầy đủ tiện ích để sinh sống. Dự án là tổ hợp sẽ góp phần tạo nên khung cảnh rực rỡ trong chuỗi đề án “Dòng Sông Ánh Sáng” của Thành Phố trong tương lai.

I/ TỔNG QUAN DỰ ÁN CAPITAL SQUARE ĐÀ NẴNG :
Tên Dự Án : Capital Square
Chủ Đầu Tư : Công ty TNHH Mega Assets và Công ty TNHH Bất động sản SIH
Vị Trí : Dự án tọa lạc tại đường Trần Hưng Đạo, Ngô Quyền và Nguyễn Công Trứ, gần cầu sông Hàn và TTTM Vincom.
Quy Mô : 61.368m2
Đơn Vị Xây Dựng : Đang cập nhật
Loại Hình Sản Phẩm : Dự án bao gồm 2 Phân khu với 3.391 căn hộ
- Capital Square 2:
- Chủ đầu tư: Công ty TNHH Mega Assets.
- Quy mô: 7 tòa căn hộ và 1 tòa dịch vụ.
- Số lượng căn hộ: 1.681 căn.
- Trong đó, có 502 căn được phép bán cho người nước ngoài.
- Capital Square 3:
- Chủ đầu tư: Công ty TNHH Bất động sản SIH.
- Quy mô: 7 tòa căn hộ.
- Số lượng căn hộ: 1.710 căn.
- Trong đó, có 512 căn được phép bán cho người nước ngoài.
Khởi Công : Quý I/2025
Bàn Giao Dự Kiến : Quý I/2027
Pháp Lý : Sở hữu lâu dài với người Việt Nam và 50 năm với NNN.
II/ VỊ TRÍ DỰ ÁN CAPITAL SQUARE ĐÀ NẴNG :
Dự án Capital Square là một tổ hợp thương mại, dịch vụ và căn hộ cao cấp nằm ở vị trí đắc địa tại phường An Hải Bắc, quận Sơn Trà, thành phố Đà Nẵng. Dự án nằm trên tuyến đường huyết mạch Trần Hưng Đạo + Ngô Quyền tạo nên vị trí độc tôn cho dự án mà không phải dự án nào cũng có được.

- Phía Đông: Đường Ngô Quyền
- Phía Tây: Đường Trần Hưng Đạo (ven sông Hàn)
- Phía Nam: Đường Nguyễn Công Trứ
- Phía Bắc: Tiếp giáp với trung tâm thương mại Vincom và đường Bùi Dương Lịch
Dự án nằm giữa 2 cây cầu nổi tiếng nhất và đẹp nhất Đà Nẵng là Cầu Sông Hàn và cầu Rồng.
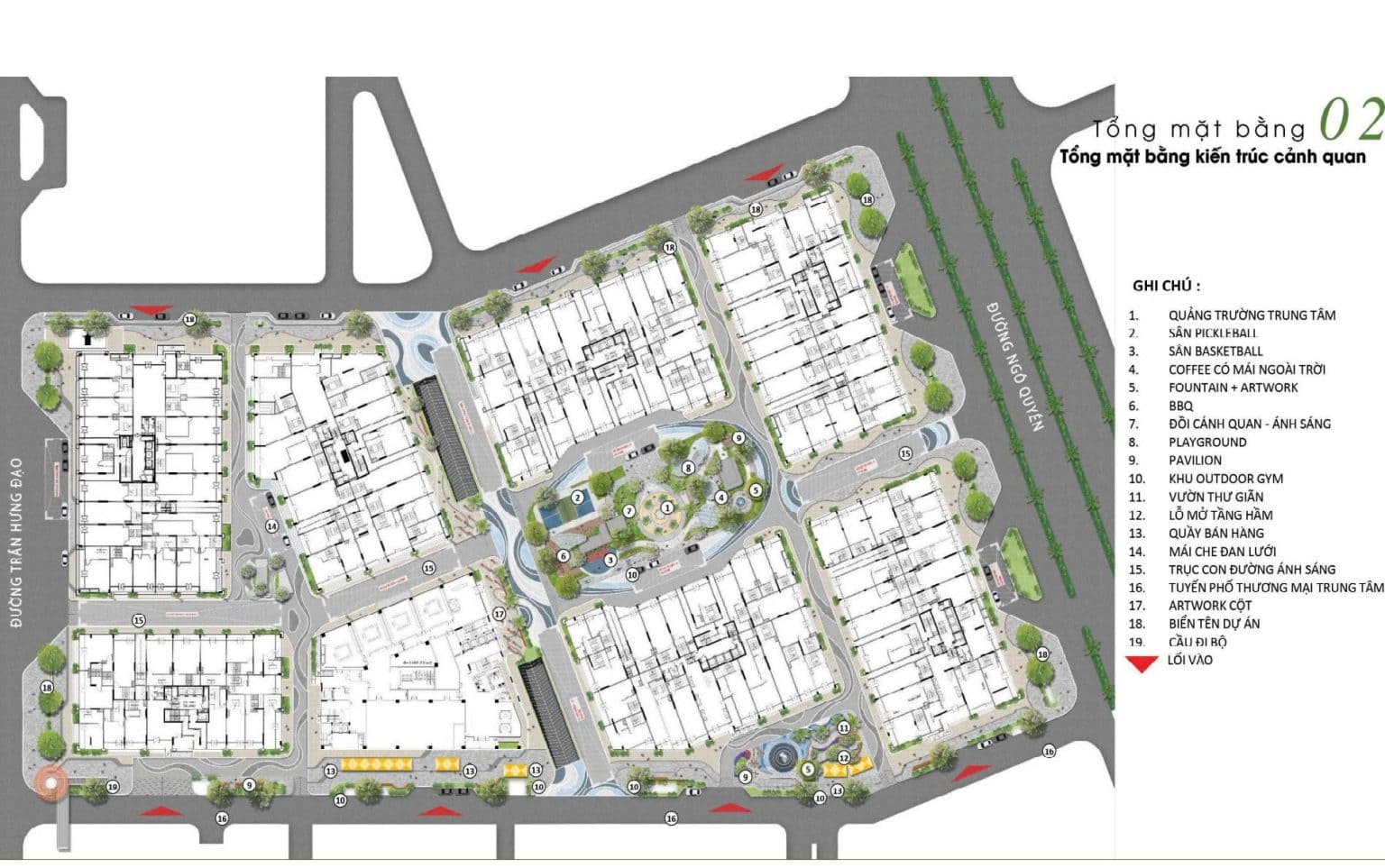
III/ TIỆN ÍCH DỰ ÁN CAPITAL SQUARE ĐÀ NẴNG :
Dự án Capital Square với 80 tiện ích cho cư dân, tạo ra một không gian đẳng cấp đảm bảo hài hoà cho tất cả cư dân sinh sống và làm việc tại dự án. Kèm theo đó là tiện ích 2 TTTM lớn nhất TP toạ lạc ngay tại dự án, chỉ cần đi bộ vài bước chân là quý khách có thể dễ dàng trãi nghiệm.

Dự án có công viên chuyên đề hơn 40 tiện ích và hồ bơi nằm tại tầng 4 chuẩn Olympic, sẽ tạo cho cư dân một nơi an cư lý tưởng trong tương lai.
IV/ MẶT BẰNG TỔNG THỂ DỰ ÁN CAPITAL SQUARE ĐÀ NẴNG :
Dự án không có căn Studio và căn 3 Phòng ngủ. Với thiết kế tất cả các căn đều có bancol dự án là nơi dự kiến sẽ có tầm view hoàn hảo bậc nhất tại Đà Nẵng.

Mặt bằng điển hình toà Queens (C4) với 29 tầng nổi và căn hộ bắt đầu từ tầng 5

Mặt bằng điển hình toà Kings (C6) với 29 tầng nổi và căn hộ bắt đầu từ tầng 5
V/ CHÍNH SÁCH BÁN HÀNG CAPITAL SQUARE ĐÀ NẴNG :
Đang cập nhật…
VI/ HÌNH ẢNH THỰC TẾ DỰ ÁN CAPITAL SQUARE (Cập Nhật 10/08/2025):





























































